
三井不動産の最高グレードマンション。羽田空港にアクセス便利な浜松町駅から徒歩5分。東京駅、品川駅も5分の国内外へのスムーズなアクセスが可能。汐留のイタリア街や浜離宮恩賜庭園に隣接する好立地。 37階建てのホテルライクなタワーレジデンス。ラウンジやスカイウォークガーデン等、魅力的な共用スペースが充実。
| 価 格 | 42,800万円 |
|---|---|
| 管理費 | 26,160円/月 |
| 修繕積立金 | 15,630円/月 |
| 土地権利 | 所有権 |
| 現 況 | 空室 |
| 引 渡 | 相談 |
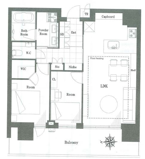
| 間取り | 2LDK |
|---|---|
| 専有面積 | 68.86㎡ / 741.20 sq.ft. |
| 所在階 | 34F |
| 向 き | 西 |
| バルコニー面積 | 17.68㎡ / 190.30 sq.ft. |
| 駐車場 | 有り(62,000円/月) |
| 備 考 | ペット可、フルリフォーム済み(2025年9月)、東京タワーを望む |
|---|
| 構 造 | 鉄筋コンクリート 地上37階 地下1階 |
|---|---|
| 総戸数 | 563戸 |
| 築 年 | 2019年2月 |
|---|---|
| 用途地域 | 商業地域 |
| 所在地 | 東京都港区浜松町1丁目 |
|---|---|
| 交 通 | JR山手線 : 浜松町駅 徒歩5分 都営地下鉄大江戸線 : 大門駅 徒歩5分 都営地下鉄大江戸線 : 汐留駅 徒歩6分 都営地下鉄三田線 : 御成門駅 徒歩8分 JR山手線 : 新橋駅 徒歩12分 |
© 2025 PLAZA HOMES, LTD.