
価 格 | 59,000万円 |
---|---|
管理費 | 73,120円/月 |
修繕積立金 | 12,710円/月 |
土地権利 | 所有権 |
現 況 | 未入居 |
引 渡 | 相談 |
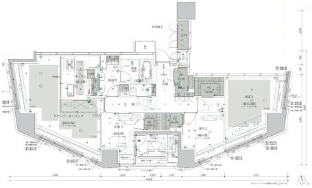
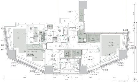
間取り | 3LDK |
---|---|
専有面積 | 115.50㎡ / 1,243.23 sq.ft. |
所在階 | 9F |
向 き | 南西 |
バルコニー面積 | 6.98㎡ / 75.13 sq.ft. |
駐車場 | - |
備 考 | - |
---|
構 造 | 鉄筋コンクリート 地上17階 地下2階 |
---|---|
総戸数 | 102戸 |
築 年 | 2024年8月 |
---|---|
用途地域 | 第二種住居地域 |
所在地 | 東京都千代田区三番町 |
---|---|
交 通 | 東京メトロ半蔵門線 : 半蔵門駅 徒歩8分 JR中央線・総武線各駅停車 : 市ヶ谷駅 徒歩11分 東京メトロ有楽町線 : 市ヶ谷駅 徒歩8分 |
© 2025 PLAZA HOMES, LTD.