
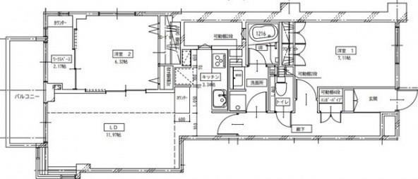
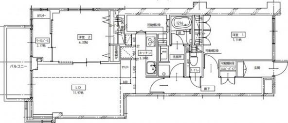
間取り | 2 LDK+1 バス |
---|---|
専有面積 | 71.14㎡ |
賃 料 | 485,000円/月 |
管理費 | - |
敷 金 | 1ヵ月 |
礼 金 | - |
更新料 | - |
入居時期 | 要相談 |
---|---|
契約形態 | 定期借家契約 |
ペット | - |
駐車場 | 無 |
備 考 | 賃料はダイナミックプライシングを導入しております。詳細についてはお気軽にお問合せください。 特徴: 家具・家電付, 水道光熱費込み |
所在地 | 東京都新宿区西早稲田 |
---|---|
最寄駅 | JR山手線 高田馬場駅 徒歩12分 東京メトロ副都心線 西早稲田駅 徒歩7分 都電荒川線 面影橋駅 徒歩5分 |
構 造 | 鉄筋コンクリート造 地上6階 |
---|---|
築 年 | 1987年7月 |
© 2025 PLAZA HOMES, LTD.