
東京メトロ南北線「白金台」駅から徒歩7分、都営浅草線「高輪台」駅から徒歩9分、山手線「五反田」駅から徒歩13分、そして「目黒」駅からも徒歩13分に位置するHmlet 白金台。4駅6路線の利用が可能なアクセスの良さが魅力です。 高級住宅街として知られるエリアにありながら、駅周辺にはカフェやレストラン、スーパーが多く、日常の買い物にも困りません。閑静な住宅街でありながら、生活の利便性が高い点が特徴です。 徒歩圏内には、「国立科学博物館」や「東京都庭園美術館」といった芸術を楽しめる施設があり、さらに緑豊かな「八芳園」も近くにあります。これにより、静かでゆったりとした暮らしを楽しむことができます。 Hmlet 白金台で、高級感あふれるエリアでの新しい生活を始めてみませんか?都会の喧騒を忘れ、穏やかな時間を過ごせる理想の住まいです。
*お見積り、表示金額に関して:お見積は別途Hmlet社よりご案内が届きます。表示価格はオールインクルーシブ賃料プラン2ヶ月以上3か月未満契約時の参考価格です。ご契約期間や条件により変動しますので、詳細はお問合せください。
*光熱費:賃料に含まれる
*清掃サービス:可(別途料金)
*表示価格は最長12か月で契約した際の金額となる為、条件によって変動の可能性あり
*英語対応、入居後の対応可能、仲介手数料・礼金不要、管理費不要
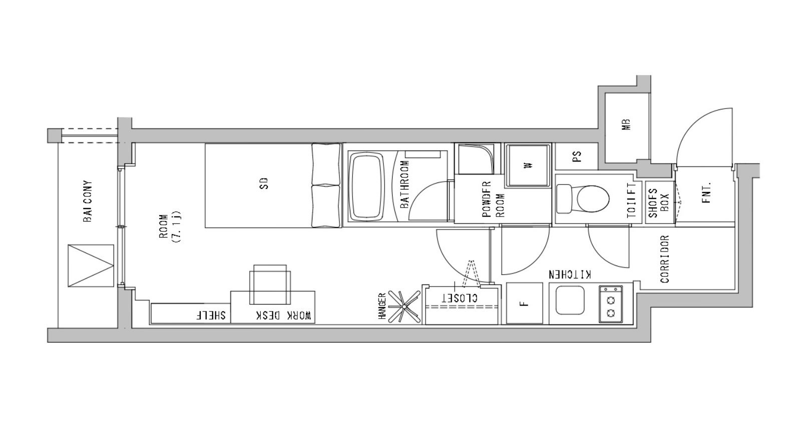
| 間取り | 1K | ||
|---|---|---|---|
| 専有面積 | 23.83㎡ | ||
| 賃料 | 
                                
  | 
                        ||
| 最大収容人数 | 1名 | ||
| 敷金 | 要問合せ | ||
| 最低賃借期間 | 1ヶ月 | 
| ペット | ペット不可 | 
|---|---|
| 駐車場 | |
| 備考 | 
| 住所 | 東京都品川区上大崎1丁目10-19 | 
|---|---|
| 最寄駅 | 東京メトロ南北線「白金台」駅 徒歩7分 都営浅草線「高輪台」駅 徒歩9分 山手線「五反田」駅 徒歩13分、「目黒」駅 徒歩13分  | 
                
| 構 造 | Reinforced Concrete | 
|---|---|
| 築 年 | 2021年5月 | 
© 2025 PLAZA HOMES, LTD.