
高田馬場駅9分、雑司が谷駅7分の閑静な住宅街の中に佇むラグジュアリーな外観の物件です。 新宿、池袋まで5分、大手町も直通15分のアクセスの良さに加え、スーパーやドラッグストアも徒歩2分。カフェやレストラン、スポーツジムなど日常生活に必要なものがすぐに揃い、利便性の高さと住みやすさが特徴です。 物件の共用スペースには、ベランダがついており、心地よい日差しを浴びて快適な日々をお過ごしいただけます。
*お見積り、表示金額に関して:お見積は別途Hmlet社よりご案内が届きます。表示価格はオールインクルーシブ賃料プラン2ヶ月以上3か月未満契約時の参考価格です。ご契約期間や条件により変動しますので、詳細はお問合せください。
*光熱費:賃料に含まれる
*清掃サービス:可(別途料金)
*表示価格は最長12か月で契約した際の金額となる為、条件によって変動の可能性あり
*英語対応、入居後の対応可能、仲介手数料・礼金不要、管理費不要
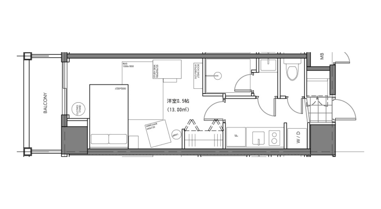
間取り | 1K | ||
---|---|---|---|
専有面積 | 25.92㎡ | ||
賃料 |
|
||
最大収容人数 | 1名 | ||
敷金 | 要問合せ | ||
最低賃借期間 | 1ヶ月 |
ペット | ペット可 |
---|---|
駐車場 | |
備考 |
© 2025 PLAZA HOMES, LTD.